پروژه طراحی نما - اداری ایوانکی

Previous slide
Next slide

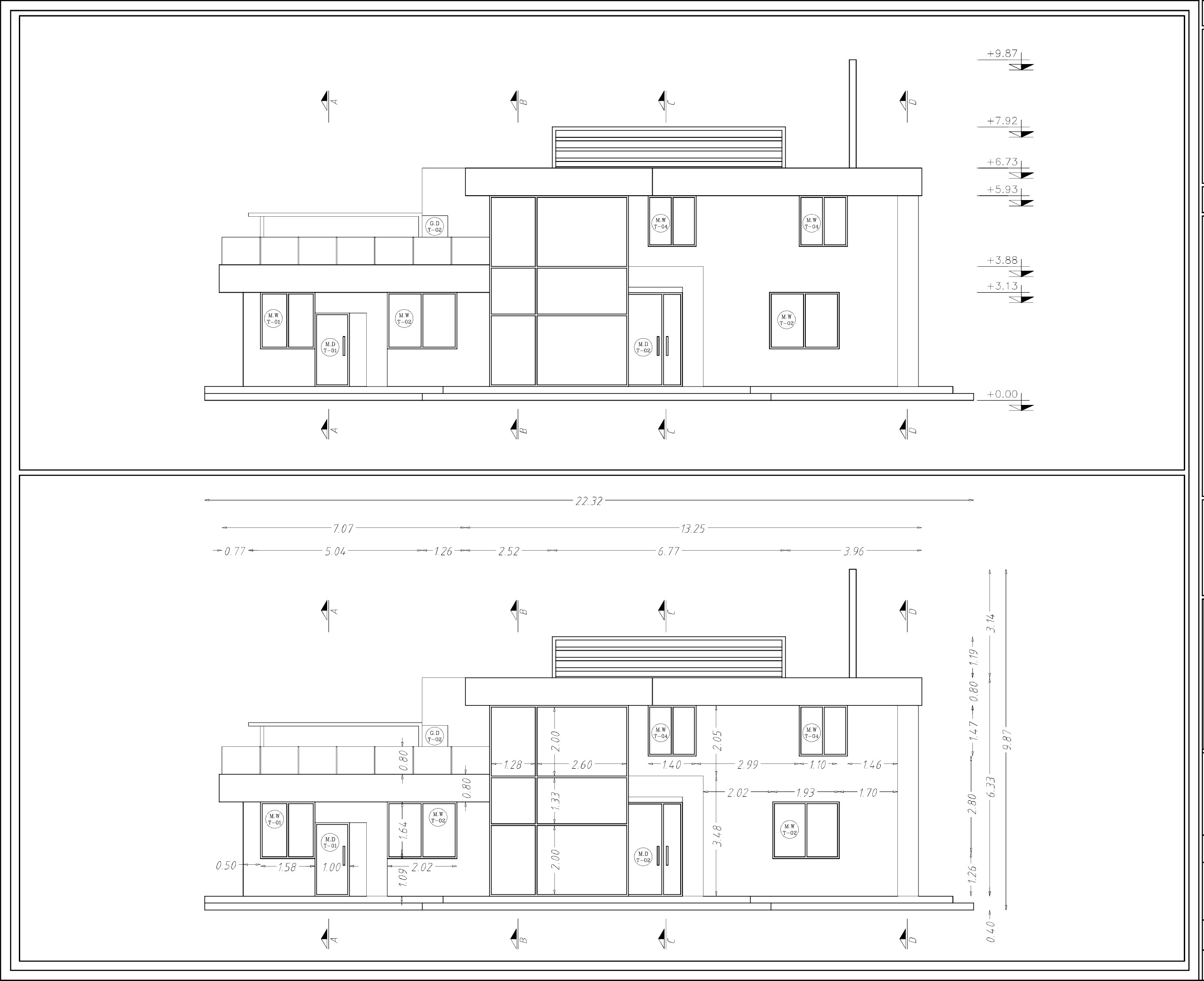
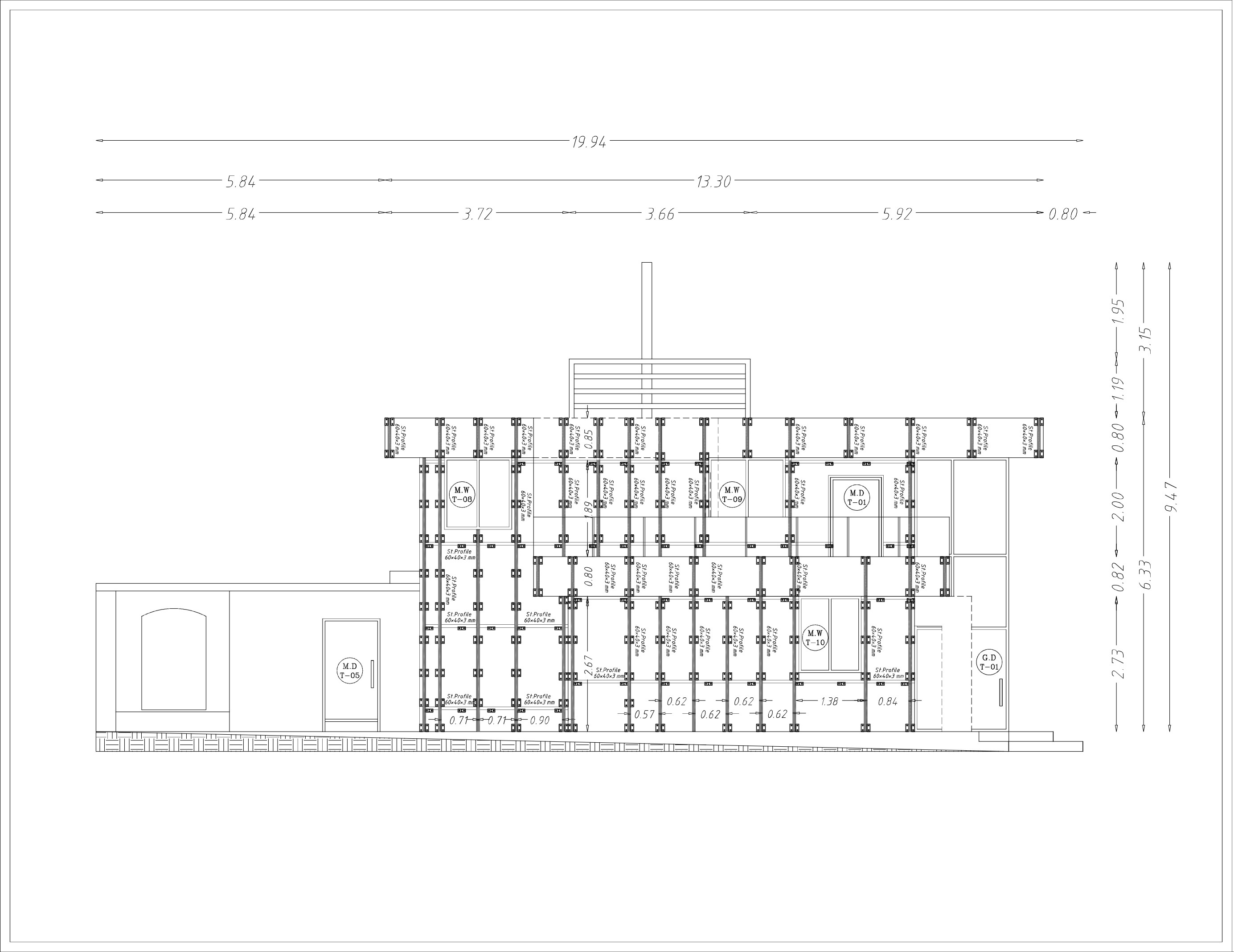
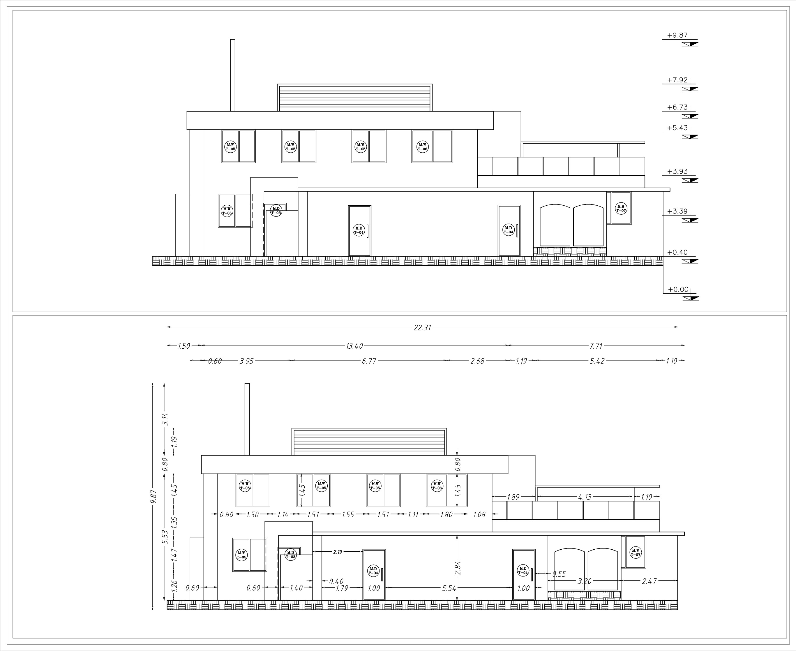
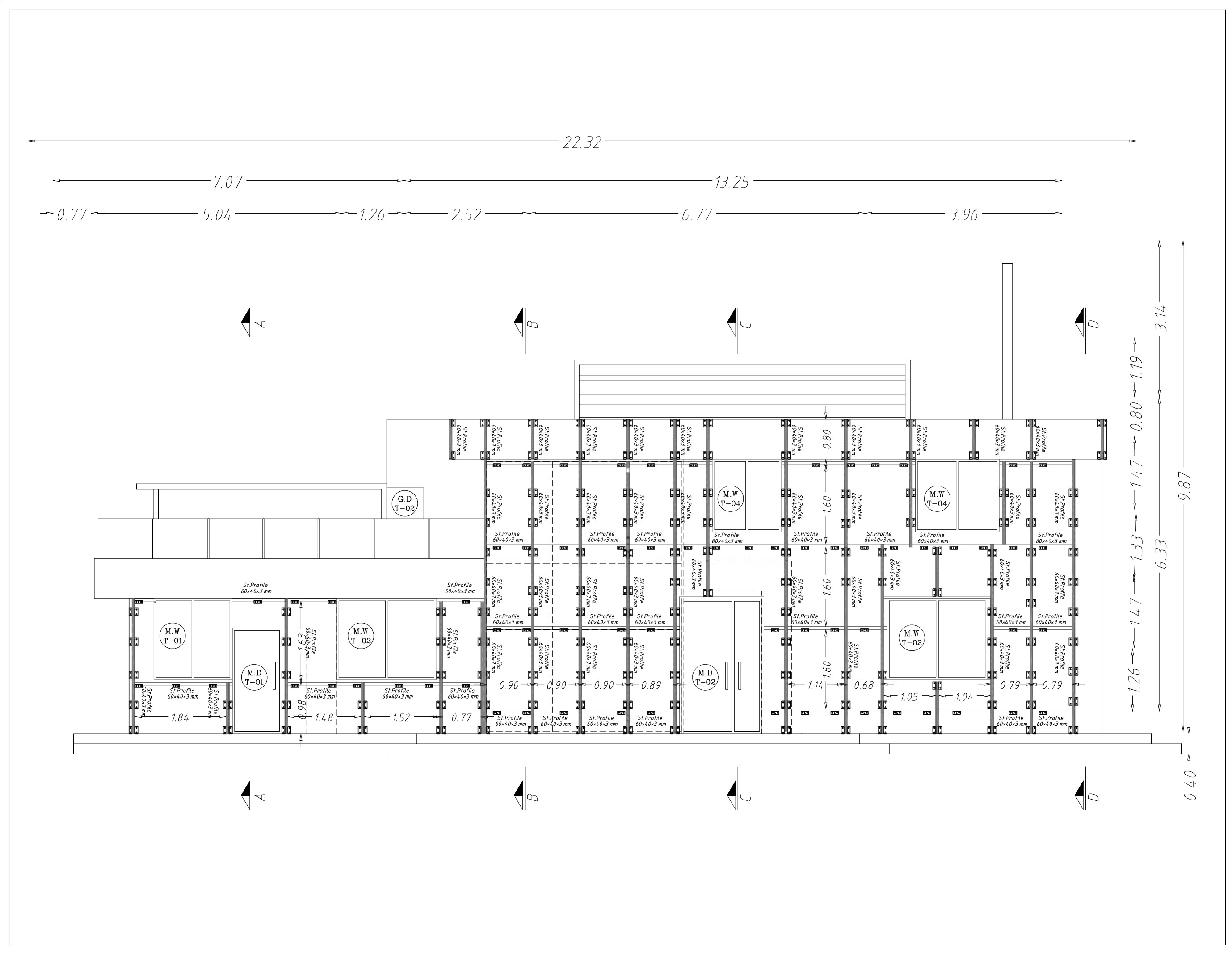
مشخصات پروژه

پروژه مورد نظر، طراحی نمای ساختمان اداری شرکت پترو میلاد کاسپین، واقع در شهرک صنعتی ایوانکی می باشد. در تاریخ 1400/08/01 قرارداد طراحی این پروژه منعقد گردیده است.

کاربری پروژه : اداری

تاریخ شروع قرارداد : 1400/07/01

تاریخ پایان قرارداد : 1400/09/01

کارفرما : آقای صالحی

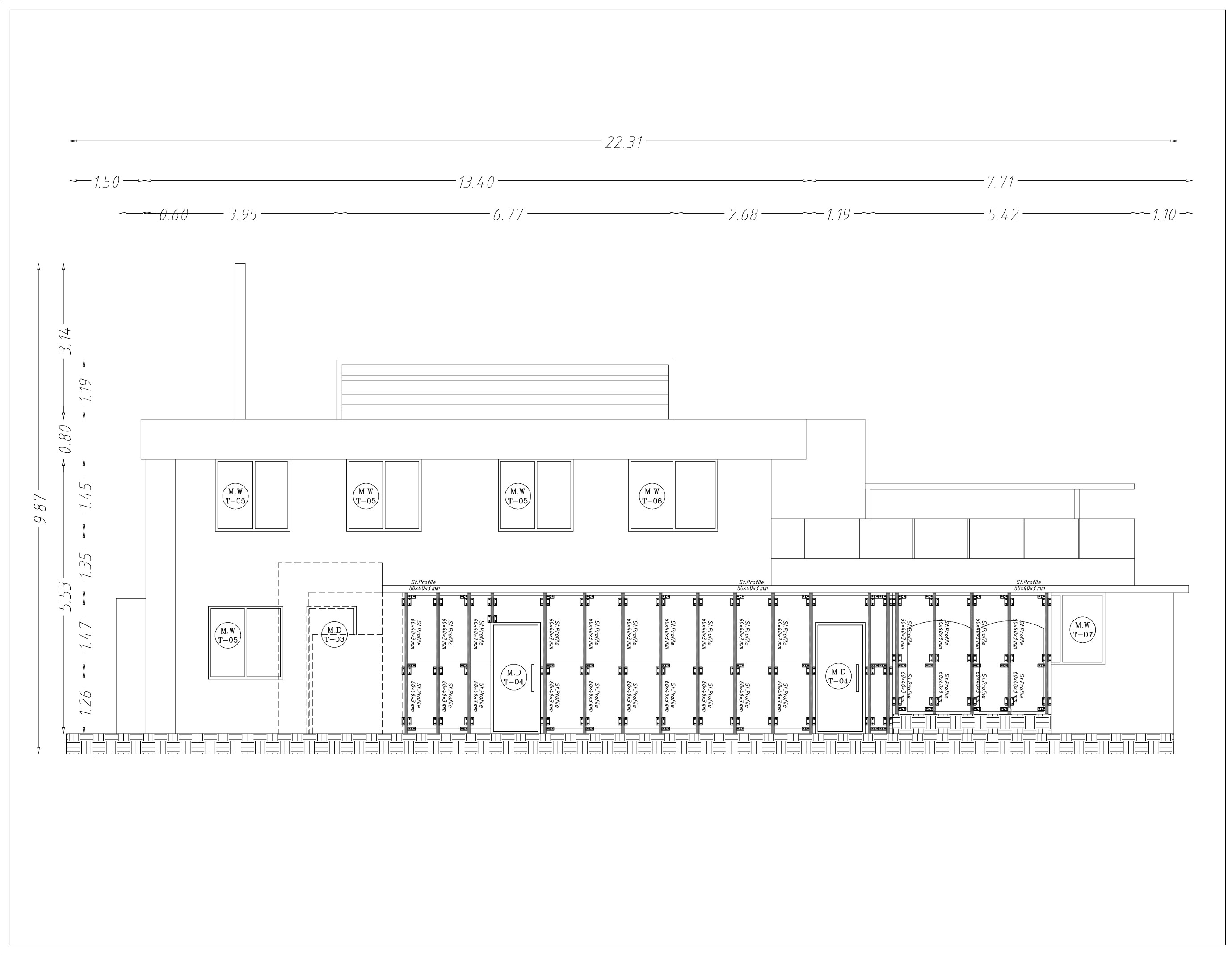
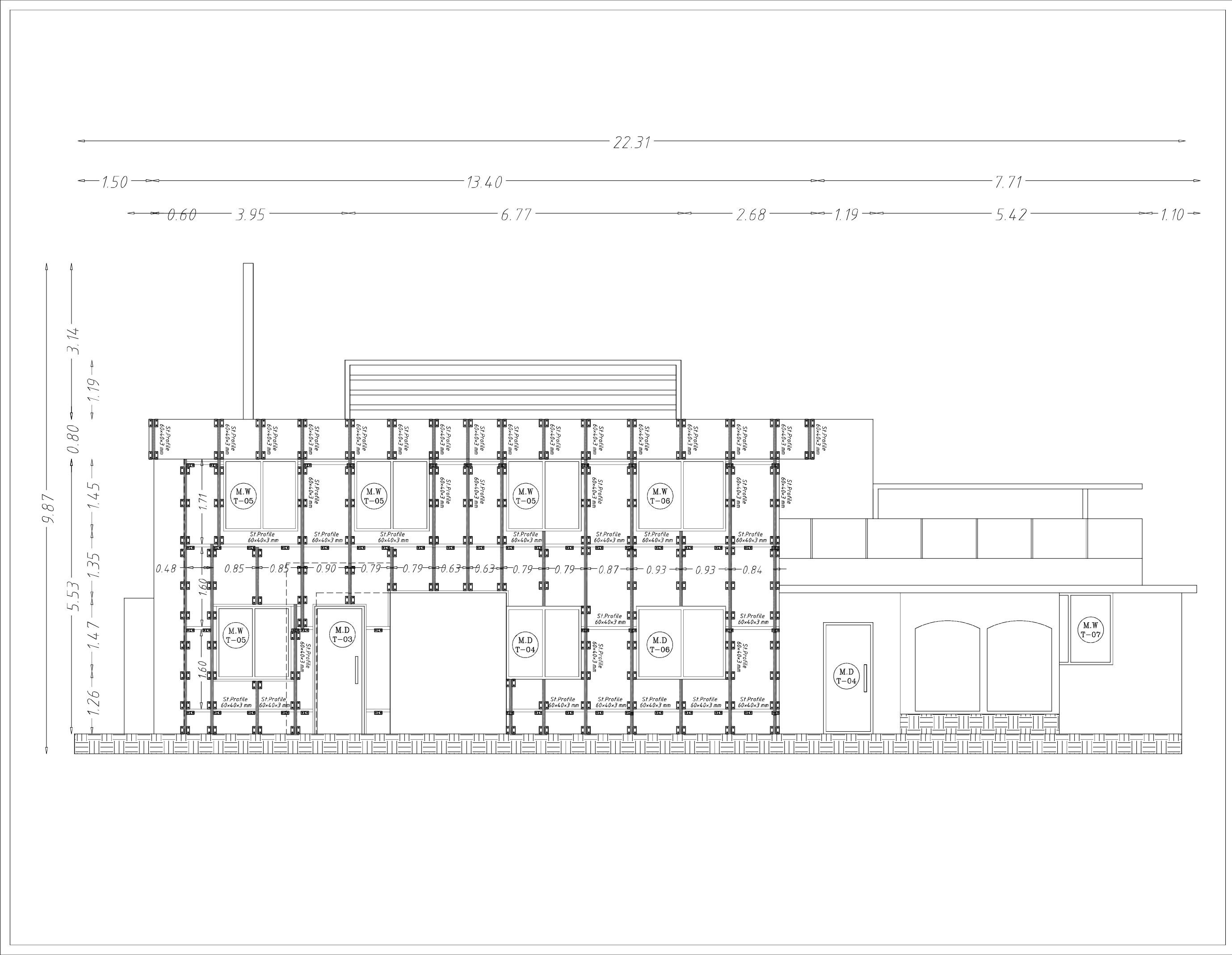
متراژ نما : 400 مترمربع

گالری تصاویر پروژه

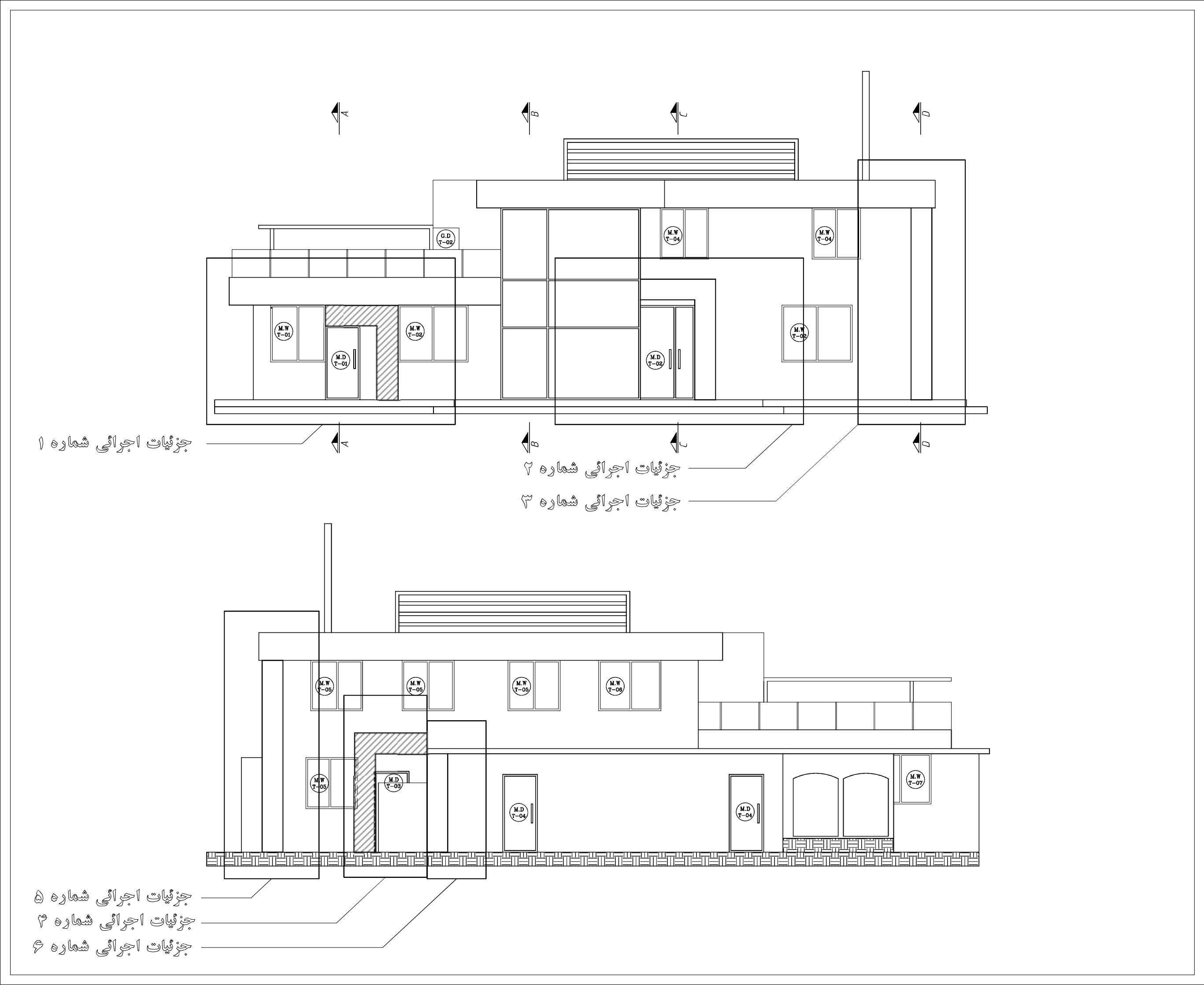
آلبوم خلاصه نقشه ها و جزئیات اجرایی پروژه